Pedestal Mount Concrete Preparation

The CPF32’s pedestal mount can be installed either:

  • Into the ground by casting into new concrete.

  • Onto an existing concrete surface.

Do not use expanding anchor bolts. Do not install the CPF32 on an asphalt surface.

The required kit components, required tools and installation steps vary depending on the type of installation. This section provides basic guidelines for all approved installation types.

Installation Overview

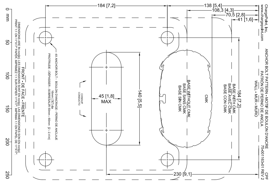
To install the CPF32 pedestal mount into the ground, you need the components shown below.

  • M16 x 250 threaded rods (4)

  • M16 nuts (16)

  • M16 washers (12)

  • Bolt Pattern Template for mounting with a CMKClosed Cable Management Kit 75-001238-01

These components can be purchased from ChargePoint by ordering a CPF32 Pedestal Mount Kit.

When installing onto an existing concrete surface, you only need eight nuts and eight washers. Additionally, required consumables are described below.

Installation on New Concrete

Before casting new concrete, review the site for suitability to install a CPF32. The CPF32 requires space behind the conduit stub-up for the Cable Management Kit (CMKClosed Cable Management Kit), if applicable. To ensure adequate clearance, refer to the illustrations below and to the CPF32 Mounting Template included in the Pedestal Mount Kit.

If the original copy of the installation template is lost, a new one can be printed at: ChargePoint Product Reference Documentation. Ensure that the PDF version of the mounting template is accurate by printing at 100% scale on A3 paper and verifying at least one dimension.
ChargePoint recommends consulting with an engineer to create site specific drawings. Ensure the installation complies with all applicable codes and ordinances.
  • The concrete block must measure at least 600 mm on all sides, including underground.

  • The bolt threads must extend 55 mm above the concrete.

  • The conduit must not exceed a maximum of 45 mm in diameter and extend 660 mm above the concrete.

  • The service wiring must extend 1.5 m above the concrete surface.

Tools Needed

In addition to the items in the CPF32 Pedestal Mount Kit, you also need:

  • An M16 spanner wrench.

  • A digging shovel with steel scoop.

  • A spirit level.

  • Grade C30 concrete.

  • Materials to build a temporary frame to support the template over the installation site.

  • Materials to build a wooden version of the template.

Preparation

  1. Dig a hole with the minimum measurements of 600 mm x 600 mm x 600 mm.

    The concrete block you create must be at least 600 mm on all sides.

  2. Ensure that electrical cable and conduit has been installed in the correct location and that the appropriate circuit protection and metering is in place, following all local codes and regulations.

  3. Ensure that enough power cable (1.5 m) is above the planned ground level to create a service loop. It can be trimmed back during installation as needed.

  4. Create a base for the concrete as required by local codes and regulations.

  5. Create a wooden version of the template.

  6. Build a temporary frame to support the wooden template over the hole.

  7. Before pouring the concrete pad, make sure that all pedestal mounting components are readily available at the installation site.

  8. Install two nuts, with two washers captured between them, onto each of the four bolts, as illustrated. Lock them together so the lower end of the upper nut is located 165 mm from the bottom of the bolt. This sets the length of the exposed threads.

  9. Insert the four bolts through the wooden template. This ensures the relative position of the bolts and ensures that the flange of the pedestal fits over the bolts.

  10. On the bottom end of each bolt, install a nut, a washer and a nut. Lock the two nuts together so that the lower nut aligns to the bottom of the bolt. This provides retention for the bolt in the concrete.

Installation Instructions

  1. Pour the concrete into the hole you prepared.

  2. Immediately after pouring the concrete, push the bolts into the concrete. Rotate each bolt to draw concrete into the threads. You may need to slightly loosen the hexagon nuts to rotate the mounting bolts. Ensure correct alignment and that the top 55 mm of the bolts remain exposed.

    Rotate the bolts as you insert them. This allows the concrete to fully coat the threads of the bolts, reducing the amount of trapped air.

  3. Retighten the hexagon nuts to the template.

  4. Remove any boards or shims supporting the mounting template. Leave the mounting template in place until the concrete is fully cured.

Complete After Concrete Cures

  1. When the concrete is fully cured, remove the upper nut and the washer.

  2. Adjust the remaining nuts and washers until about 35 mm of bolt is exposed above each washer.

  3. Use a spirit level and adjust the height of the nuts as required to ensure that the four washers are completely level with each other.

You are now ready to install the CPF32 pedestal mount charging station.

Installing on Existing Concrete

If installing on existing concrete, review the site for suitability to install a CPF32. The CPF32 requires space behind the power stub-up for the pedestal and (optional) CMKClosed Cable Management Kit. To ensure adequate space, refer to the CPF32 Installation Template inclumded in the Concrete Mounting kit.

Ensure that the installation complies with all applicable codes and ordinances.
  • Review the dimensions of the existing concrete slab. To safely mount a CPF32 charging station, the concrete must be at least 200 mm thick. At this thickness, all CPF32 mounting bolts must be positioned at least 380 mm from the front edge, at least 305 mm from the side edges and at least 150 mm from the rear edge of the concrete slab.

  • If an existing charging station is already in place at the installation site, turn off all power to the station and disassemble according to the original manufacturer’s instructions. Cut away any existing bolts or non-power conduit stub-ups to ground level. Seal cut-away conduits at the slab end and disconnect wiring at the other end.

  • Ensure that you have adequate wiring. Service wiring for the CPF32 must extend 1.5 m above the platform’s surface.

  • ChargePoint recommends creating a rigid template based on the paper template to position the bolts.

Tools and Consumables Required

Quantity

Description

Purpose

1

CPF32 Pedestal Mount Kit or equivalent parts

Mounting hardware: nuts, bolts and washers, plus the mounting template.

1

Electric drill or hammer drill (a 12-mm chuck may be required depending on drill bits used)

Drill holes in existing concrete.

1

Epoxy adhesive for concrete such as Hilti RE-500

Fill drilled holes and secure anchor bolts.

1

Electrical cleaning and maintenance aerosol, such as any angle spray duster

Clean drilled holes.

NOTE: Compressed air will work.

1

Slow spiral round-shank masonry drill bit, 25 mm in diameter

Drill 25 mm holes in concrete.

NOTE: The holes must be at least 165 mm deep.

1

Drill bit for concrete embedded rebar, round 25-mm bit size

Drill a 25-mm hole through the rebar.

1

Nylon loop handle brush, 25 mm brush in diameter, 75-mm-length brush, 215 mm length overall

Clean drilled holes.

4

Push-on round cap, fits 16 mm – 17.5 mm OD, 12 mm inside height,

Keeps the epoxy inside the drilled holes in situations where the slab is only 200 mm deep.

If the original copy of the installation template is lost, a new one can be printed at: ChargePoint Product Reference Documentation. Ensure that the PDF version of the mounting template is accurate by printing at 100% scale on A3 paper and verifying at least one dimension.

Installation Instructions

  1. Install two nuts with two washers captured between them. Lock them together so the lower end of the nut is located 165 mm from the bottom of the bolt. This sets the length of the exposed threads.

  2. Use the Installation Template to mark the hole locations.

  3. Remove the template and drill four 25-mm diameter holes 165 mm deep into the concrete. When locating the template, consider the station’s total footprint. For reference, a template is included in the Concrete Mounting kit.

    • Bolts must be parallel after installation. Therefore, ensure that drill holes are plumb by using a bubble level to check the angle of the drill after drilling 25 – 30 mm.

    • If installing over existing buried conduit, position the centre of the template around the conduit stub-up.

    • You may need two drill bits: one for the concrete (with the pilot); and another for the rebar (without the pilot). Always start the hole using the standard drill bit, then switch to the rebar drill bit only if drilling through rebar.

  4. Remove all dust from inside the drilled holes using compressed air, a vacuum and/or a brush.

  5. If the concrete slab is only 200 mm deep, insert a plug in each hole to keep the epoxy in place until it hardens. Place the plug over the long end of a bolt and use the bolt to push the plug to the bottom of the hole.

  6. Fill each hole with epoxy to about 65 – 75 mm below the top. Continue immediately to the next step because the epoxy sets within about eight minutes.

  7. Inserting the threaded bolts displaces the epoxy, causing it to fill the holes to grade level. If the epoxy is below grade level, you can add more after the next step.

  8. Place the Installation Template over the holes. This ensures the relative position of the bolts and that the flange of the pedestal fits over the bolts.

  9. Insert the bolts through the template into the holes. Rotate the bolts as you insert them to draw epoxy into the threads.

    Rotate the bolts as you insert them. This allows the concrete to fully coat the threads of the bolts, reducing the amount of trapped air.
  10. If needed, top up the holes with epoxy to grade level.

  11. Allow the epoxy to cure according to manufacturer’s instructions before proceeding.

Complete After Concrete Cures

  1. When the epoxy is fully cured, remove the upper nut and the washer.

  2. Adjust the remaining nuts and washers until about 35 mm of bolt is exposed above each washer.

  3. Use a spirit level and adjust the height of the nuts as required to ensure that the four washers are completely level with each other.

You are now ready to install the CPF32 pedestal mount charging station.